
Разработка планировочного решения
На основе предоставленных вами данных разрабатываются несколько (2–3) вариантов планировочных решений. После обсуждения и ваших комментариев один из них детально дорабатывается и становится финальной версией.
Состав:
- Обмерный план;
- План демонтажа перегородок и конструкций;
- План монтажа перегородок и конструкций;
- План после переустройства;
- Планировочное решение.
Срок проектирования: ≈10 рабочий дней
Стоимость: 450 Р/м2.
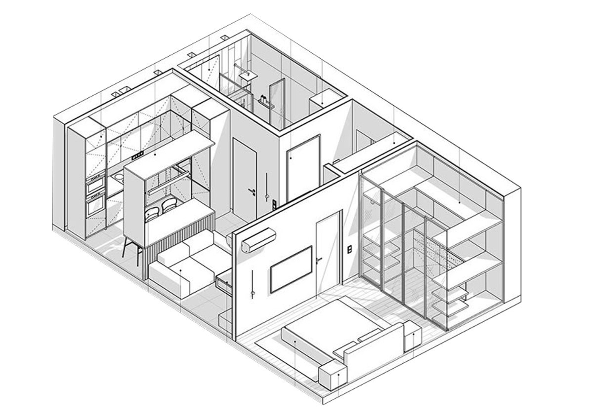
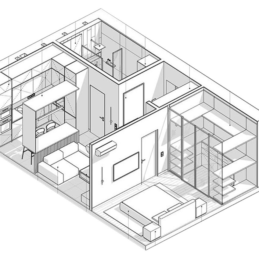
Разработка планировочного решения с трёхмерной визуализацией
На основе предоставленных вами данных разрабатываются несколько (2–3) вариантов планировочных решений. После обсуждения и ваших комментариев один из них детально дорабатывается и становится финальной версией.
Применяется в ситуациях, когда сложно визуально воспринять пространственное расположение элементов планировки.
Состав:
- Обмерный план;
- План демонтажа перегородок и конструкций;
- План монтажа перегородок и конструкций;
- План после переустройства;
- Планировочное решение;
- Упрощенная трёхмерная визуализация.
Срок проектирования: ≈12 рабочий дней.
Стоимость: 550 Р/м2.

Эскизный дизайн-проект
Эта услуга предназначена для тех клиентов, кто желает увидеть будущий интерьер визуально, получив концепции дизайна и базовые чертежи, необходимые для реализации задуманного проекта на практике.
Услуга ориентирована на клиентов, хорошо знакомых с техническими аспектами ремонтных работ. Подходит владельцам квартир или домов, способным чётко сформулировать требования к материалам, расположению розеток и прокладке коммуникаций для строительной бригады.
Состав:
- Обмерный план;
- План демонтажа перегородок и конструкций;
- План монтажа перегородок и конструкций;
- План после переустройства;
- Планировочное решение;
- Спецификация материалов отделки стен;
- План комплектации мебели;
- План комплектации света;
- Трёхмерная визуализация разработанного планировочного решения.
Стоимость: 1400 Р/м2.
Срок проектирования: ≈20 рабочий дней.

Полный дизайн-проект
Полный дизайн-проект идеально подойдет вам, если:
- Вы хотите создать уникальный и гармоничный интерьер, соответствующий вашему вкусу и образу жизни;
- Вам важна четкая детализированная документация для качественного воплощения задумки строителями;
- Вы стремитесь избежать рисков и ошибок в процессе ремонта;
- Планируете комплексный капитальный ремонт или перепланировку помещения;
- Хотите сэкономить свое время и нервы, доверяя работу профессионалам.
Состав:
- Обмерный план;
- План демонтажа перегородок и конструкций;
- План монтажа перегородок и конструкций;
- План после переустройства;
- План размещения и открывания дверей и ведомость заполнения дверных проёмов;
- Спецификация заполнения дверных проёмов;
- План расстановки мебели с размерами;
- План привязки сантехнического оборудования;
- План комплектации сантехники;
- Схема установки отопительного оборудования;
- План расположения вентиляции и кондиционирования;
- План потолка с указанием типа используемого материала, уровней и подсветки;
- План устройства потолочных карнизов и декоративных элементов потолка;
- План размещения и привязки осветительного оборудования;
- План взаимодействия выключателей и осветительного оборудования;
- Совмещенный план потолка и осветительного оборудования;
- План размещения электроустановочного оборудования;
- План напольных покрытий;
- План устройства плинтусов;
- Развертки каждой стены по всем проектируемым помещениям;
- Спецификация материалов отделки стен;
- План комплектации мебели;
- План комплектации света;
- Эскизы столярных изделий;
- Реалистичная 3D визуализация.
Стоимость: 2500 Р/м2.
Стоимость и сроки могут варьироваться в зависимости от количества квадратов.
Срок проектирования: 40-90 рабочий дней.

Авторский надзор
Это комплекс профессиональных услуг дизайнера, направленных на обеспечение точного воплощения разработанного проекта в ходе строительных работ на объекте.
Преимущества данной услуги для вас:
- экономия времени, денег и нервов;
- точное соблюдение проекта;
- максимальное соответствие ожиданий/реальности.
Состав:
- регулярные выезды с целью осуществления контроля за ходом ремонтно-строительных работ (около 4-х раз в месяц);
- рекомендации и консультации клиента или представителей бригады по поводу производимых ремонтных работ в соответствии с дизайн-проектом;
- консультации исполнителей работ по реализации отдельных элементов дизайна, заложенных в дизайн-проекте;
- сверка результатов ремонтных работ с дизайн-проектом.
Стоимость: 30000 Р/месяц.

Личная консультация
Личную консультацию рекомендуем заказчикам, которые:
- Находятся на этапе подбора недвижимости;
- Сомневаются в работе предыдущего специалиста;
- Стремятся разобраться в этапах предстоящего ремонта;
- Нуждаются в рекомендациях относительно выбора цветовой палитры и сочетания отделочных материалов.
Стоимость: 3000 Р.


